Deze eigendom wordt u te koop aangeboden door Access Estate. Maak vandaag nog jouw afspraak via sms of WhatsApp op 0475 92 30 35.
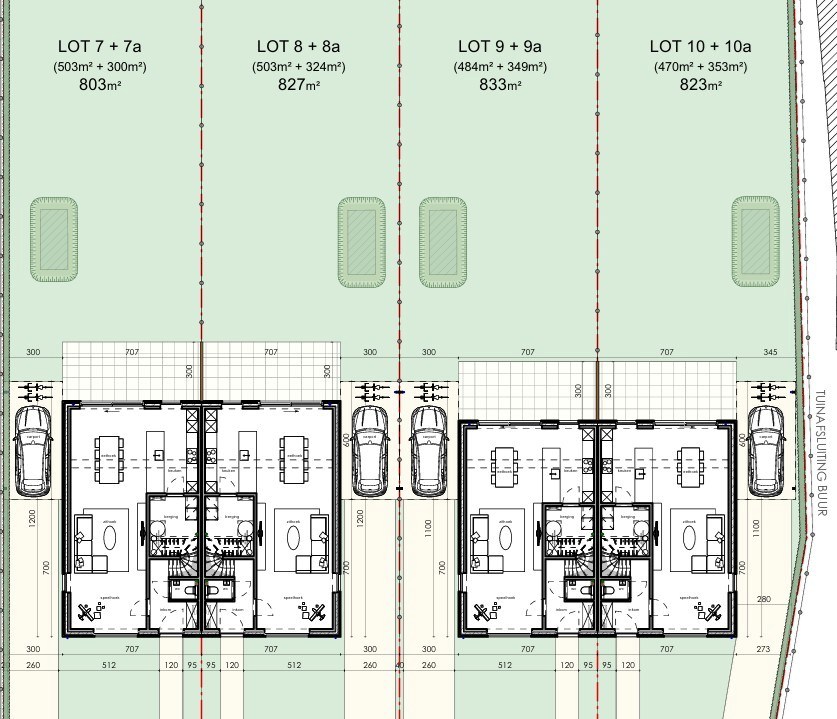
In een rustige, doodlopende straat worden vier moderne halfopen nieuwbouwwoningen gerealiseerd met een open uitzicht op de omliggende velden.
Dit is een unieke woonplek waar rust, ruimte en bereikbaarheid harmonieus samenkomen, met een ideale balans tussen landelijk wonen en dagelijks comfort.
- Op het gelijkvloers bevindt zich een lichtrijke leefruimte met open keuken en aparte berging, die naadloos aansluit op de ruime tuin.
- De eerste verdieping telt drie volwaardige slaapkamers, een badkamer en een apart toilet.
- Daarnaast beschikt elke woning over een volwaardige, in te richten zolderverdieping, perfect als vierde slaapkamer, bureau of hobbyruimte.
De woningen worden gebouwd met hoogwaardige en duurzame materialen.
De afwerking kies je volledig zelf: keuken, vloeren en badkamer worden afgestemd op jouw persoonlijke stijl. Zo wordt deze woning écht jouw thuis.
Dankzij performante isolatie en duurzame technieken (incl. zonnepanelen) behalen deze woningen een zeer gunstig E-peil.
Dat betekent niet alleen een lage energiekost, maar ook een hoog wooncomfort!
Een investering die klaar is voor de toekomst. Prijzen exclusief kosten.
Verkooprechten van 12% op de grondprijs, en 21% BTW op de constructie en afwerking zijn van toepassing.
Benieuwd om jouw droomwoning verder te ontdekken?
Kenmerken
827 m²
180 m²
ja
Klasse A
3
1
>
ScholenTussen 500 meter en 1000 meter
AutosnelwegTussen 3000 meter en 4000 meter
TreinstationDichtbij
BushalteTussen 500 meter en 1000 meter
WinkelsTussen 1000 meter en 1500 meter
ParkMinder dan 500 meter
Kenmerken
Bouwjaar2026
BeschikbaarheidWHEN_READY
VerwarmingVloerverwarming - volledige oppervlakte Warmtepomp